Com o PDO você evita erros, retrabalhos e gastos que não estavam na conta e tem a casa linda e funcional que sempre sonhou.
É sobre decisões técnicas que, se erradas, saem muito caro.
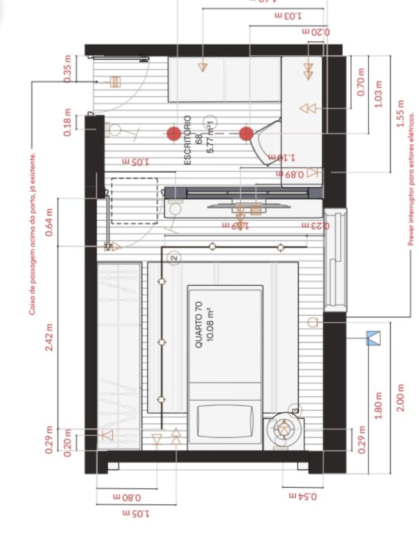
Quem já fez obra sabe: basta uma tomada fora do lugar, um encanamento mal passado ou uma sequência errada de execução para transformar um sonho em estresse. O Plano de Obra (PDO) foi criado para resolver isso.
Ela nasce do planeamento inteligente.
O PDO entrega um projeto técnico completo com todos os detalhes da sua reforma, organizado de forma lógica, clara e funcional — para que a obra aconteça com fluidez e segurança.







Com mais de 13 anos de experiência, eu não penso só na parte técnica. Penso na experiência completa do espaço:

O plano de obra é entregue em 30 a 45 dias úteis, a partir do recebimento completo do seu briefing.
Os valores do PDO variam conforme a metragem do imóvel e a complexidade do projeto.




















O PDO é desenvolvido por uma equipa dedicada de arquitetos e designers de interiores da Amanda Neves Arquitetura e Interiores, que transforma ideias em projetos personalizados, funcionais e sofisticados.
Com mais de 350 projetos entregues, Amanda Neves, fundadora e CEO, traz sua experiência na direção técnica e criativa, garantindo a excelência e exclusividade que marcam cada trabalho.
A união da visão estratégica de Amanda com a expertise da equipa assegura resultados únicos, refletindo a personalidade de cada cliente.
Amanda Neves LDA© Todos os direitos reservados-2025.